
ABB西门子变频器控制柜+恒压供水PLC控制柜
- 所属类别: 变频器PLC控制柜
- 产品规格:全自动智能,人机界面
- 产品品牌: 中赢供水
- 产品简介:变频器PLC控制柜在系统可靠性方面有良好的效果,提高生产效率,并且节能效益明显。变频器PLC控制柜由于采用了可编程控制器,因而实现了供水系统在多种工况下的全程控制。系统配置合理,性...
变频器PLC控制柜在无负压供水设备中的应用实例
变频器PLC控制柜的诞生
变频器PLC控制柜在系统可靠性方面有良好的效果,提高生产效率,并且节能效益明显。变频器PLC控制柜由于采用了可编程控制器,因而实现了供水系统在多种工况下的全程控制。系统配置合理,性能可靠,操作方便,人机界面友好,显示、制表和绘图功能齐全,实用性强。该系统的投入使用,对提高企业、单位的产品质量和管理水平起到了促进作用。
在贯彻可持续发展战略的今天,变频器PLC控制柜中的应用具有特殊的意义。随着计算机控制技术的发展,传统继电器控制技术必然被基于计算机技术而产生的PLC控制技术所取代。而PLC本身优异的性能使基于PLC控制的系统变的经济高效稳定且维护方便。
通过PLC实现了无负压供水设备的各种控制调节功能是供水行业发展的大势所趋。
变频器PLC控制柜主要装置包括:可编程控制器(PLC)、ABB变频器、压力传感器、PID控制器、动力控制线路以及相关软件控制单元。用户通过控制柜面板上的只是灯和按钮、转换开关来了解和控制系统的运行。通过安装在出水管网上的压力传感器,把出口压力信号变成4-20mA的标准信号送入PID调节器,经运算与给定压力参数进行比较,得出一调节参数,送给变频器,由变频器控制水泵的转速,调节系统供水量,使供水系统管网中的压力保持在给定压力上;当用水量超过一台泵的供水量时,通过PLC控制器加泵。根据用水量的大小由PLC控制工作泵数量的增减及变频器对水泵的调速,实现恒压供水。当供水负载变化时,输入电机的电压和频率也随之变化,这样就构成了以设定压力为基准的闭环控制系统。
同时系统配备的时间控制器和PID控制器,使其具有定时换泵运行功能(即钟控功能,由时间控制器实现)和双工作压力设定功能(PID控制器和时间控制器实现)。此外,系统还设有多种保护功能,尤其是硬件/软件备用水泵功能,充分保证了水泵的及时维修和系统的正常供水。


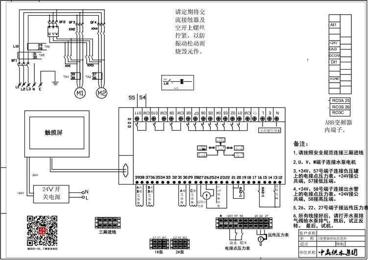
变频器PLC控制柜接线图

无负压供水设备变频器PLC控制柜调试参数图





变频器PLC控制柜特点分析
1、节约能源
变频器PLC控制电机与传统控制的电机比较,能源节约是最有实际意义的,根据注水量、输油量需求来供给的电机工况是经济的运行状,即可节电60%
2、运行成本降低
传统电机的运行成本由三项组成:初始采购成本、维护成本和能源成本。其中能源成本大约占电机运行成本的77%。通过能源成本降低44.3%,再加上变频起动后对设备的冲击减少,维护和维修量也跟随降低,所以运行成本将大大降低。
3、提高压力控制精度
变频器PLC控制柜具有精确的压力控制能力。使电机的压力输出与系统所需的注水量相匹配。变频控制电机的输出量随着电机转速的改变而改变。由于变频控制电机速度的精度提高,所以它可以使管网的系统压力变化保持在3pisg变化范围,也就是0.2bar范围内,有效地提高了工况的质量。
4、延长电机的使用寿命
变频器从0HZ起动电机,它的起动加速时间可以调整,从而减少起动时对电机的电器部件和机械部件所造成的冲击,增强系统的可靠性,使电机的使用寿命延长。此外,变频控制能够减少机组起动时电流波动,这一波动电流会影响电网和其它设备的用电,变频器能够有效的将起动电流的峰值减少到最低程度。
5、低了电机的噪音
根据电机的工况要求,安装变频调速后,电机运转速度明显减慢,因此有效地降了电机运行时的噪音。
变频器PLC控制柜功能介绍
1、电源切换与保护功能
变频器PLC控制柜通常设计有断路器元件,它连接着进线电源,可以帮助变频控制柜完成电路的通断操作,并能够在电路和变频器出现短路或过载时提供保护。此外变频柜还可以在电机维护时切断电源保证操作人员安全。
2、变频调速功能
变频器PLC控制柜的控制面板上设置有变频调速用的电位器,可以根据操作人员的输出频率,向电机输送指令信号,控制电机的转速。变频控制柜中的部分产品设置有工频切换功能,以保证在变频器出现故障时,通过自动控制回路将电动机切换回工频电源。
3、直观控制功能
变频器PLC控制柜的柜体上设计有显示设备与操作面板,它与变频控制柜内部的电器元件相连,可以直观显示变频控制柜的运行状态,同时方便操作人员控制变频装置的运行,及对电机等被控制设备进行现场操作。
变频器PLC控制柜的柜体上,还安装有各种仪器仪表及指示灯,例如电压表、电流表、频率表,及电源指示灯、报警指示灯、运行指示灯、工频指示灯等。变频控制柜的运行及操作状态,可以直接反应在各项仪表及指示灯上,实现对变频器工作状态的时时监测。
4、安全防护功能
变频器PLC控制柜将各种包括变频器在内的各种电气元件都集中在柜体内,这样可以减少外部环境对电气元件的影响程度,降低电气元件受环境污染的程度,也降低变频控制柜操作人员的触电危险,因此具有较好的安全防护效果。







